2 Bedroom
2 Bathroom
1200 Sqft
Air Conditioned
Baseboard Heaters
$1,699,900Maintenance,
$920.35 Monthly
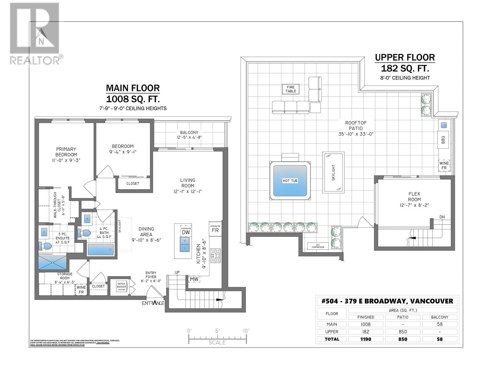
Your search for the perfect rooftop patio has ended! Presenting the stunning NW-facing penthouse with 850sf ROOFTOP PATIO in Mount Pleasant's desirable 'Synchro' building. This 2bedroom+den & 2bathroom corner suite offers an expansive 1190sf floorplan and has plenty of eye-catching features including AC, smart home technology, 9' ceilings, a bright skylight that allows plenty of natural light to flow through the home, and a gourmet kitchen that comes equipped with quartz countertops, large island with seating, gas cooktop, and Blomberg & Fultop s/s and integrated appliances. Situated on the quiet side of the building with peaceful views of Dude Chilling Park through to Downtown Vancouver and the North Shore Mountains which can be enjoyed from every angle of the home. Now to the best part - the rooftop deck that you have been dreaming of. Outdoor BBQ & kitchen, dining area, hot tub, seating area with fire pit, garden, storage - you can fit it all! Don't let this one pass you by!Open: Sunday, April 13th from 1-3pm (id:54355)
Property Details
|
MLS® Number
|
R2978655 |
|
Property Type
|
Single Family |
|
Amenities Near By
|
Recreation, Shopping |
|
Community Features
|
Pets Allowed With Restrictions, Rentals Allowed With Restrictions |
|
Features
|
Central Location, Elevator |
|
Parking Space Total
|
1 |
|
View Type
|
View |
Building
|
Bathroom Total
|
2 |
|
Bedrooms Total
|
2 |
|
Amenities
|
Laundry - In Suite |
|
Appliances
|
All, Hot Tub |
|
Constructed Date
|
2018 |
|
Cooling Type
|
Air Conditioned |
|
Fixture
|
Drapes/window Coverings |
|
Heating Fuel
|
Electric |
|
Heating Type
|
Baseboard Heaters |
|
Size Interior
|
1200 Sqft |
|
Type
|
Apartment |
Parking
Land
|
Acreage
|
No |
|
Land Amenities
|
Recreation, Shopping |